Projekty
Concord
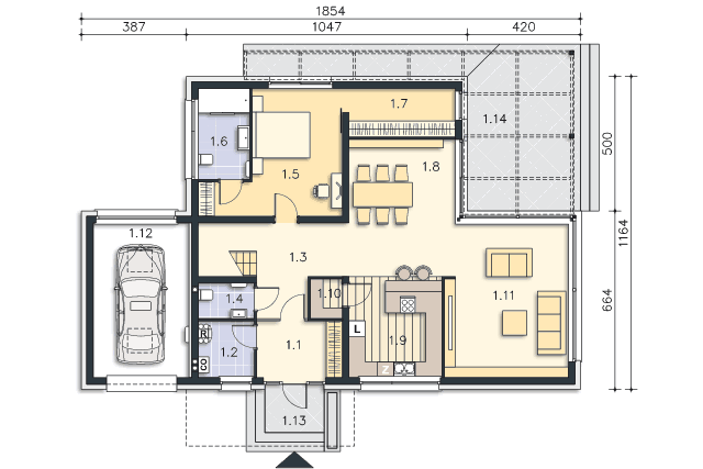
Intrygujący, nowoczesny dom z płaskim dachem i oryginalną bryłą. Równie ciekawie zostało zaprojektowane wnętrze domu. Część dzienna to otwarta przestrzeń podzielona funkcjonalnie na salon, dużą jadalnię oraz kuchnię z wyspą. Taki układ daje wiele możliwości aranżacji, np.: wydzielając kuchnię przeszklonymi ściankami w rodzaj boksu o innym kolorze posadzki, nawiązując do stylizacji w uznanych wnętrzarskich magazynach.
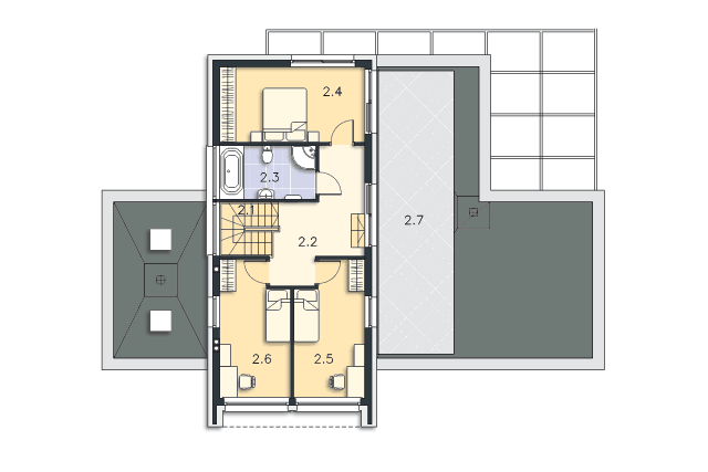
Na uwagę zasługuje też patio usytuowane zacisznie w narożniku domu, przekryte pergolą. W domu można też pokusić się o wykonanie tzw. zielonego dachu na tarasach dostępnych z piętra.
Autorzy projektu: dr inż. arch. Ludwika Juchniewicz-Lipińska, dr inż. arch. Miłosz Lipiński
Parametry domu
- pow. użytkowa: 183,03 m2
- pow. garażu: 20,38 m2
- pow. netto: 234,80 m2
- pow. zabudowy: 175,61 m2
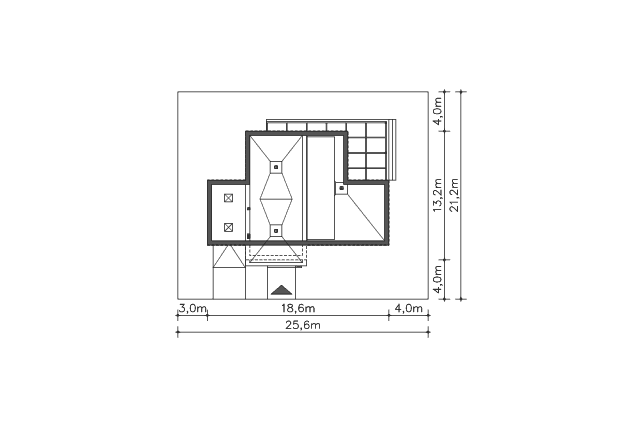
- min. szerokość działki: 25,60 m
- kubatura: 973,00 m2
- wysokość kalenicy: 7,09 m
- kąt nachylenia dachu: 1,0
Parter
- wiatrołap 6,65 m2
- c.o. 4,35 m2
- komunikacja 11,93 m2
- wc 2,69 m2
- pokój 18,35 m2
- łazienka 6,42 m2
- garderoba 7,09 m2
- jadalnia 19,55 m2
- kuchnia 12,93 m2
- spiżarnia 1,72 m2
- pokój dzienny 28,24 m2
- garaż 20,38 m2
- podest 3,45 m2
- taras 35,98 m2
Piętro
- schody 4,09 m2
- komunikacja 12,02 m2
- łazienka 12,02 m2
- pokój 14,90 m2
- pokój 12,50 m2
- pokój 12,50 m2
- taras 29,29 m2
Skontaktuj się z nami
Andrzej Grzelewski: +48 502 454 572
e-mail: biuro@techmaplus.pl
Zakład Produkcyjny:
ul. Fabryczna 13 C, 11-040 Dobre Miasto



