Projekty
Pireus III pasywny
Parterowy dom pasywny, o zwartej bryle i przemyślanym układzie funkcjonalnym. Serce domu stanowi duży pokój dzienny, z wyjściem na taras, którego ozdobą jest kominek zewnętrzny. Os strony frontowej znajduje się kuchnia wraz z przylegającym do niej pomieszczeniem technicznym.
Do dyspozycji mieszkańców jest także dodatkowy pokój oraz wygodna, duża łazienka. Poddasze to strefa prywatna, z dwiema sypialniami, garderobami i komfortową łazienka, w której – oprócz prysznica, zmieściła się także narożna wanna. Projekt ten z pewnością spodoba się osobom szukającym domu gdzie ekonomiczną eksploatację i wygodę mieszkańców połączono z proporcjonalną i harmonijną bryłą.
Do projektu domu można dokupić pasujący stylistycznie projekt garażu G42 o powierzchni ponad 40m².
Autorzy projektu: dr inż. arch. Ludwika Juchniewicz-Lipińska, dr inż. arch. Miłosz Lipiński
Parametry domu
- pow. użytkowa: 139,06 m2
- pow. netto: 164,30 m2
- pow. zabudowy: 118,85 m2
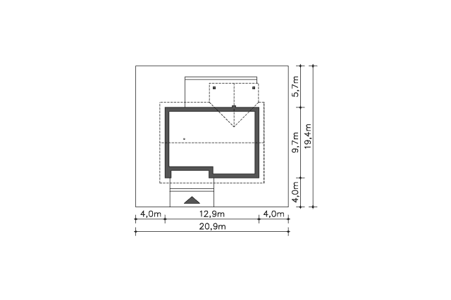
- min. szerokość działki: 20,90 m
- kubatura: 698,00 m2
- wysokość kalenicy: 7,67 m
- kąt nachylenia dachu: 35,0
Parter
- wiatrołap 5,41 m2
- komunikacja 9,93 m2
- pom. techniczne 5,99 m2
- kuchnia 11,44 m2
- pokój dzienny 31,86 m2
- pokój 13,91 m2
- łazienka 9,11 m2
- podest 13,32 m2
- taras 37,63 m2
- podest 2,56 m2
Poddasze
- schody 4,92 m2
- komunikacja 9,88 m2
- łazienka 7,25 m2
- garderoba 1,80 m2
- pokój 12,41 m2
- pokój 12,41 m2
- garderoba 2,74 m2
Skontaktuj się z nami
Andrzej Grzelewski: +48 502 454 572
e-mail: biuro@techmaplus.pl
Zakład Produkcyjny:
ul. Fabryczna 13 C, 11-040 Dobre Miasto



