Projekty
Brugia
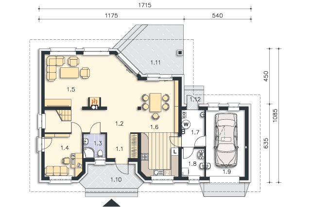
Brugia jest to dom energooszczędny z otwartą przestrzenią dzienną. Salon przenika się z jadalnią, a ta łączy się z kuchnią. Taki układ stwarza wiele możliwości wyjątkowej aranżacji wnętrza. Charakterystyczne są duże przeszklenia dodatkowo potęgujące efekt przestrzenności. Nie brakuje tutaj dodatkowego pokoju na parterze, zadaszonego tarasu, a część gospodarcza jest wydzielona i prowadzi do niej przejście z kuchni. Cztery sypialnie na poddaszu to prosta i komfortowa część prywatna.
Autorzy projektu: dr inż. arch. Ludwika Juchniewicz-Lipińska, dr inż. arch. Miłosz Lipiński
Parametry domu
- pow. użytkowa: 161,37 m2
- pow. garażu: 16,75 m2
- pow. pom. pomocniczego: 4,19 m2
- pow. kotłowni: 5,47 m2
- pow. strychu: 5,48 m2
- pow. netto: 215,98 m2
- pow. zabudowy: 162,06 m2
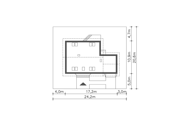
- min. szerokość działki: 24,20 m
- kubatura: 964,00 m2
- wysokość kalenicy: 8,91 m
- kąt nachylenia dachu: 40,0
Parter
- hall 5,12 m2
- komunikacja 11,70 m2
- łazienka 3,57 m2
- pokój 10,38 m2
- pokój dzienny 29,93 m2
- kuchnia, jadalnia 23,52 m2
- kotłownia 5,47 m2
- pom. pomocnicze 4,19 m2
- garaż 16,75 m2
- podest 8,56 m2
- taras 16,48 m2
- podest 1,81 m2
Poddasze
- komunikacja 9,47 m2
- łazienka 6,51 m2
- pokój 9,60 m2
- pokój 12,81 m2
- garderoba 5,74 m2
- pokój 14,47 m2
- pokój 14,57 m2
- schody 3,98 m2
- strych 5,48 m2
Skontaktuj się z nami
Andrzej Grzelewski: +48 502 454 572
e-mail: biuro@techmaplus.pl
Zakład Produkcyjny:
ul. Fabryczna 13 C, 11-040 Dobre Miasto



